Kategorie | Typ
Neubau, Wohnbau
Ort | Jahr
Dresden, 2013
Bauherr
Gamma Immobilien
Die Dresdner Südvorstadt, das Quartier südwestlich des Hauptbahnhofs, war bis 1945 eine vornehme, ja elitäre Wohngegend. Das sogenannte Schweizer Viertel, dem ältesten, noch erhaltenen Villenquartier der Stadt Dresden, wurde ab 1860 mit dem Konzept einer gehobenen Gartenstadt bebaut mit herrschaftlichen Villen inmitten von imposanten Gärten.
Hier auf einer der letzten freien Grundstücke errichtet die GAMMA IMMOBILIEN in der Hübnerstr. 10 eine Stadtvilla mit Tiefgarage.
Auf dem Nachbargrundstück, Hübnerstraße 8, steht ein bau- und stadtentwicklungsgeschichtlich bedeutendes Kulturdenkmal an dessen Erhalt ein öffentliches Interesse besteht.
Die moderne Architektur der Stadtvilla übernimmt Proportionen und Elemente der vorhandenen historischen Architektur und transportiert sie in eine moderne Formensprache.
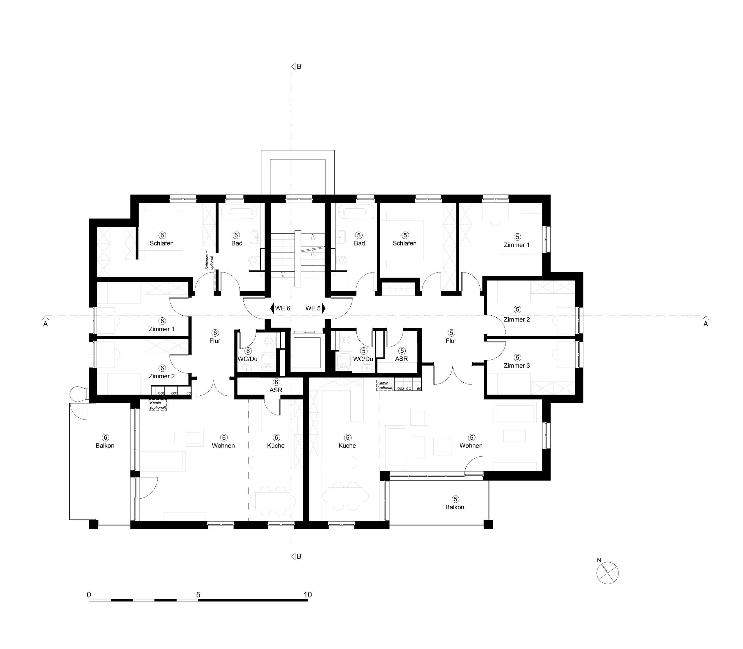
Es entstehen insgesamt 8 Wohnungen mit individuellen Grundrissen. Das Gebäude wird in fünfgeschossiger Bauweise mit Flachdach, Kellergeschoss und einer Aufzugsanlage hergestellt.
Das dargestellte Gebäude fügt sich harmonisch in die umgebende Bebauung ein, indem es die Trauf- und Firsthöhe der denkmalgeschützten Nachbargebäude konsequent einhält. Dadurch entsteht eine architektonische Einheitlichkeit, die den Bestand respektiert und zugleich modernen Wohnraum schafft.
Die Rhythmisierung der Fassade durch vertikale Gliederungselemente verleiht dem Gebäude eine dynamische und zugleich klare Struktur. Die feingliedrige Fassadengestaltung spielt mit Licht und Schatten, wodurch die Gebäudefläche aufgelockert wird und trotz der Schlichtheit Lebendigkeit erhält.
Große Fensterflächen schaffen einen modernen Charakter und sorgen für helle Innenräume, während der Einsatz klarer Formen und dezenter Materialien die gestalterische Zurückhaltung unterstreicht.
Das Gebäude steht somit im spannungsvollen Dialog zwischen zeitgenössischer Architektur und den denkmalgeschützten Strukturen der Nachbarschaft, wobei sowohl der historische Kontext als auch die funktionalen Anforderungen an modernes Wohnen berücksichtigt werden.
Bildrechte: KILIAN ARCHITEKTEN






