Kategorie | Typ
Neubau, Städtebau
Ort | Jahr
Dresden, 2005
Bauherr
EWG
Mit der Quartiersentwicklung der Kräuter-Siedlung in Dresden-Gorbitz gestaltet die Eisenbahner Wohnungsgenossenschaft EWG ein innovatives Beispiel für nachhaltiges Wohnen in Dresden. Das Projekt erschließt eine völlig neue Qualität des Wohnens in der „Platte“ und setzt Maßstäbe in der modernen Stadtentwicklung.
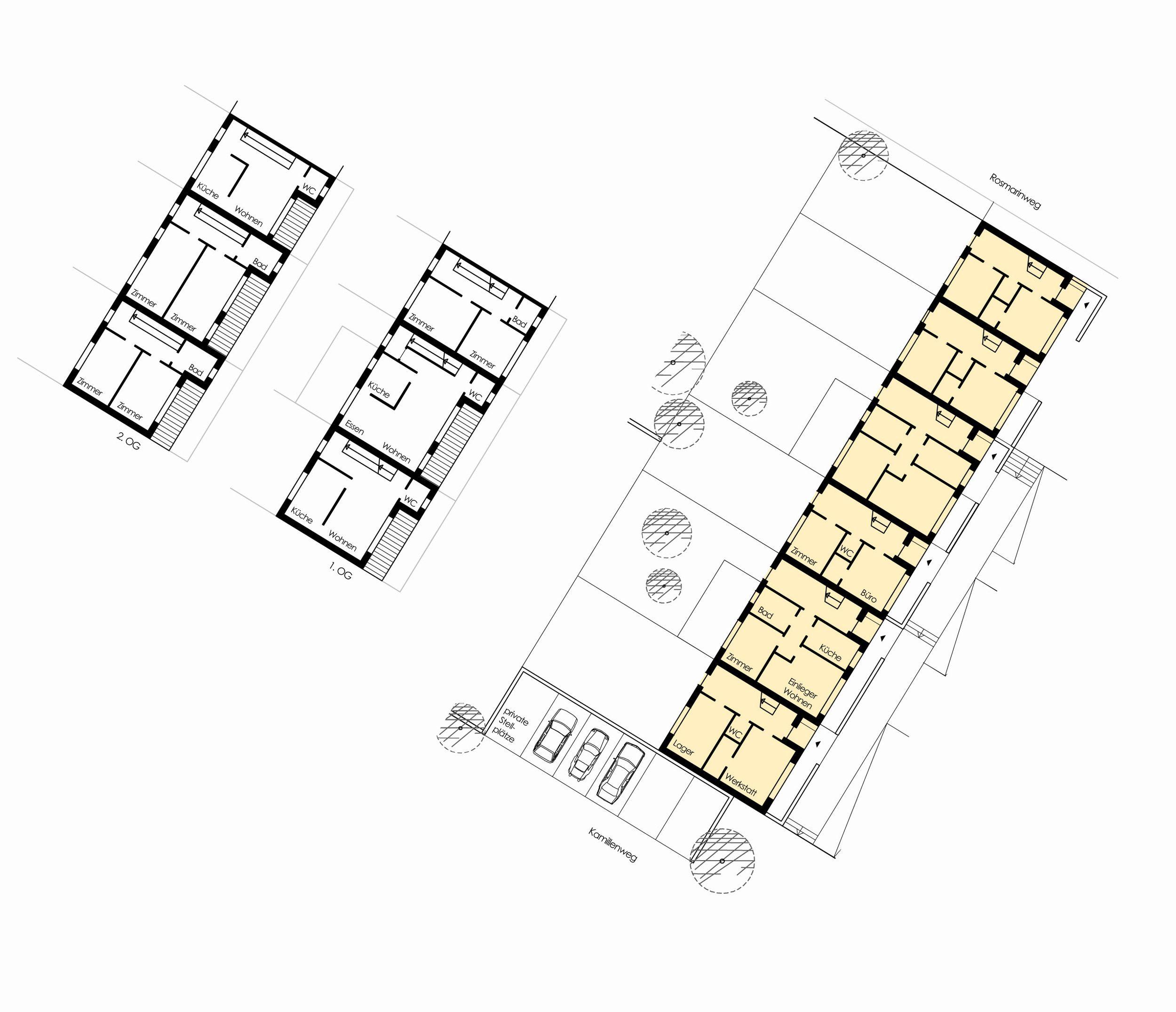
Im Rahmen eines Gutachterverfahrens überzeugte unser Büro als Arbeitsgemeinschaft mit AWA Architekten Schulze und Partner und erreichte mit dem 2. Preis die Endrunde. Das geplante Wohnquartier umfasst bis zu 100 Wohneinheiten und bietet eine große Vielfalt an Haustypen – von Stadthäusern über Gartenhofhäuser bis hin zu Doppelhäusern.
Zentrales Element des Entwurfs ist der Treppenweg, der das Quartier als Fuß- und Anliegerweg durchzieht. Er verbindet die bestehenden Wohnsiedlungen mit den Versorgungseinrichtungen in Dresden-Gorbitz und schafft eine lebendige Wegeverbindung mit hoher Aufenthaltsqualität. Entlang seines Verlaufs entstehen Quartiersplätze – Orte der Begegnung, Kommunikation und Nachbarschaft.Die Architektur des neuen Quartiers vereint Energieeffizienz, ökologische Verantwortung und zeitgemäßen Wohnkomfort. Entlang des Treppenweges gruppieren sich Stadthäuser, während sich entlang der Hanglage eine lineare Struktur mit speziell entwickelten Gartenhofhäusern anschließt. Eine lockere Doppelhausbebauung bildet den Übergang zur bestehenden Einfamilienhaussiedlung.
Alle Gebäude sind als Holz-Passivhäuser konzipiert – ein zentrales Merkmal für nachhaltiges Bauen. Diese Bauweise steht für geringe Energiekosten, ein gesundes Raumklima und eine positive ökologische Bilanz.
Im Westen entstehen die „Kräuterwiesen“ als grüne Freiflächen am Übergang zum renaturierten Weidigtbachgebiet – sie verbinden urbanes Wohnen mit naturnahem Leben und erhöhen die Lebensqualität im gesamten Quartier.
Die Kräuter-Siedlung Dresden-Gorbitz steht für ein zukunftsorientiertes Wohnkonzept, das Nachhaltigkeit, soziale Vielfalt und architektonische Qualität in Einklang bringt. Dank flexibler Grundstücksgrößen und modularer Bauabschnitte lässt sich das Projekt schrittweise realisieren, ohne das Gesamtkonzept zu verändern.
Mit diesem Projekt leistet die EWG einen wichtigen Beitrag zur nachhaltigen Stadtentwicklung in Dresden – für klimafreundliches Wohnen, moderne Architektur im Holzbau und eine lebenswerte Nachbarschaft in Gorbitz.
Bildrechte: KILIAN ARCHITEKTEN











