Kategorie | Typ
Wettbewerb, Schulbau
Ort | Jahr
Dresden, 2006
Bauherr
Landeshauptstadt Dresden
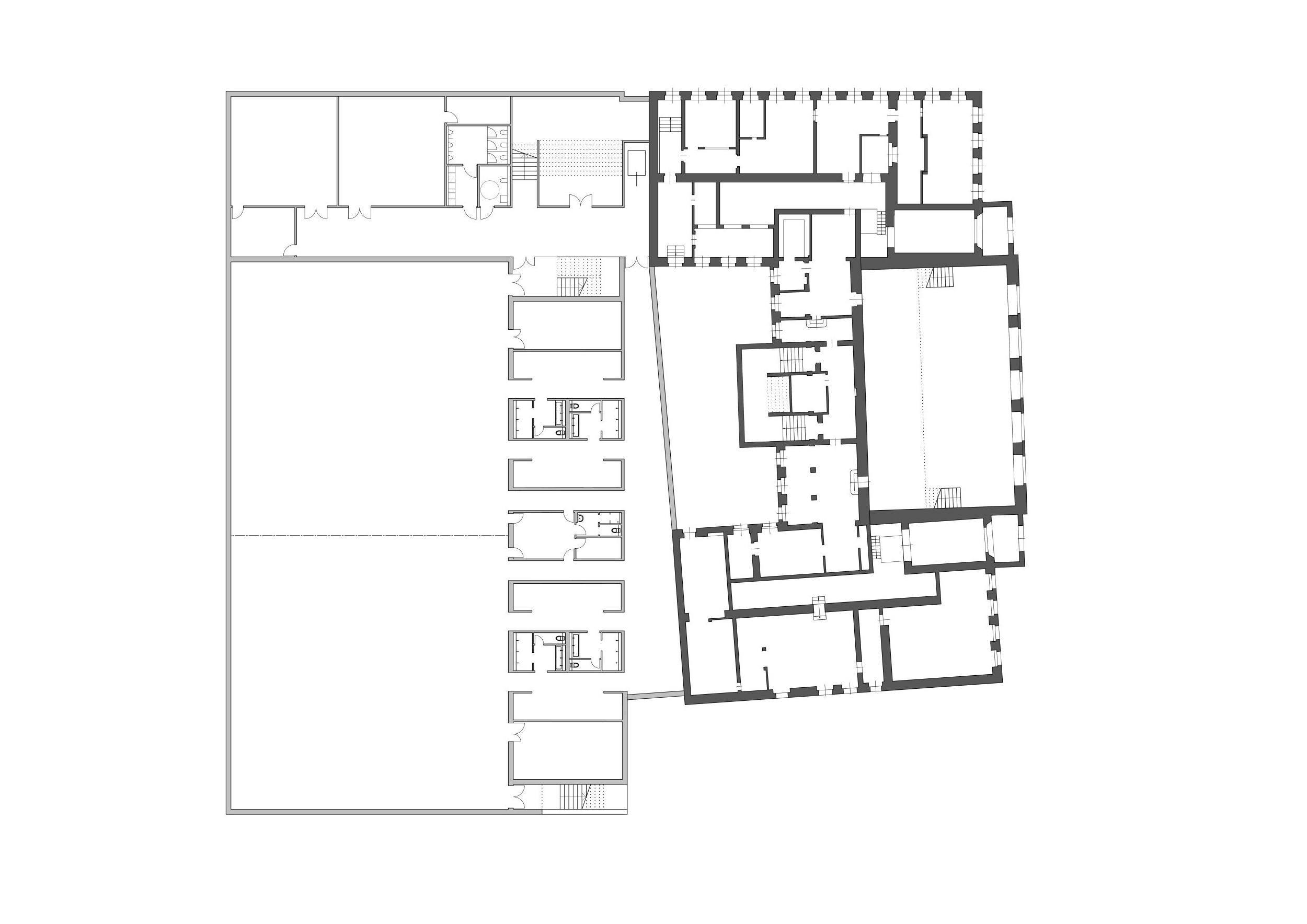
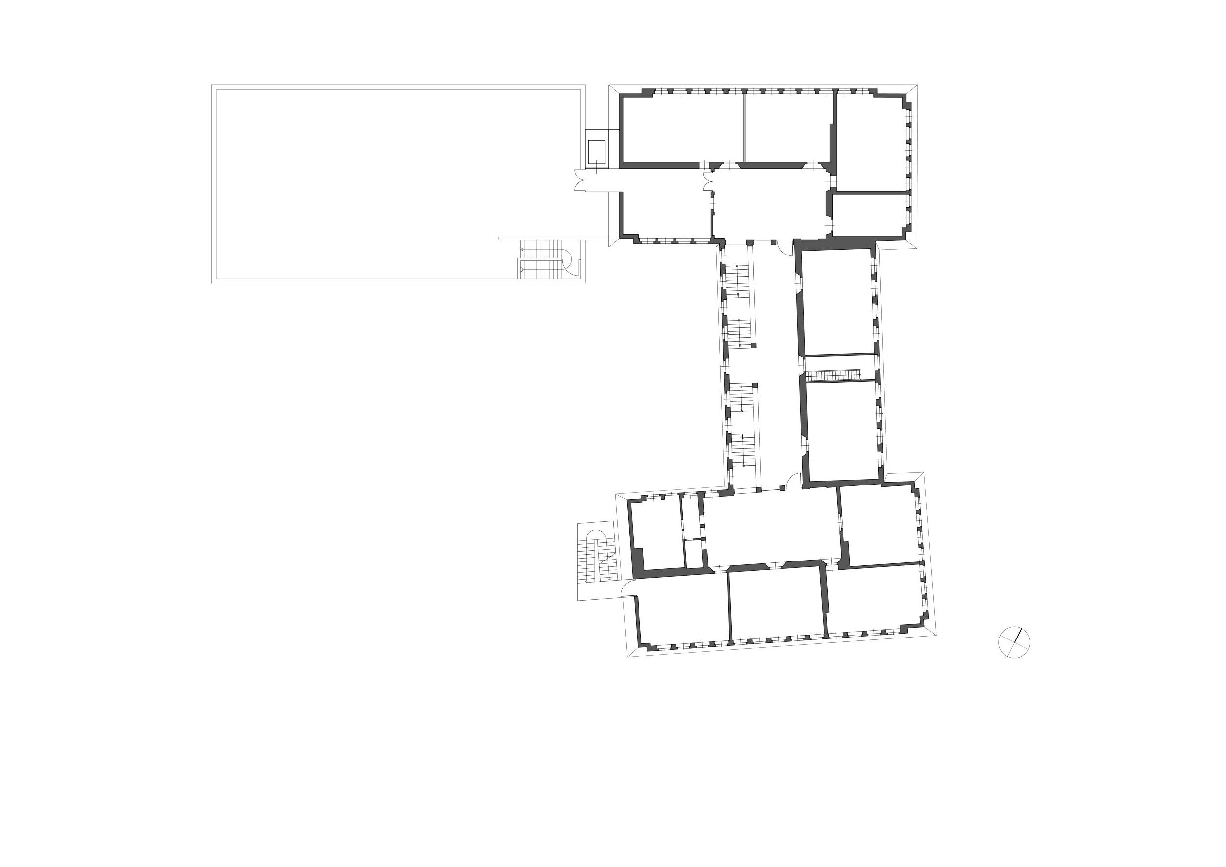
Die ehemalige Studienanstalt für Mädchen, heute Romain-Rolland-Gymnasium (RoRo), und die ehem. Kommunale Berufsschule für Knaben in der Dresdner Neustadt sind zwei von elf Schulbauprojekten von Hans Erlwein, dem damaligen Stadtbaurat und Leiter des Dresdner Hochbauamtes. Die Anlage entstand zwischen 1913 und 1916 als zusammenhängender Gebäudekomplex und ist in die in der Neustadt vorherrschenden Blockrandbebauung eingefügt. Für die geplante Erweiterung, einem Neubau für Fachkabinette, entstand in Kooperation mit der AIC Ingenieurgesellschaft für Bauplanung Chemnitz unser Beitrag „Wissenskommode“ zum Wettbewerb „Umbau des RORO“, der in die engere Auswahlrunde kam.
Um das ehemalige Ensemble wieder mehr zusammenzurücken, haben wir die Baulücke in der Weintraubenstraße mit dem Neubau für Fachkabinette, der „Wissenskommode“ geschlossen.
Auf diese Weise wird das RoRo mit seiner U-förmigen Anlage wie ursprünglich geplant wieder in die Blockrandbebauung mit eingebunden, sowie seine „Kopfbaufunktion“ im Block wieder hergestellt.
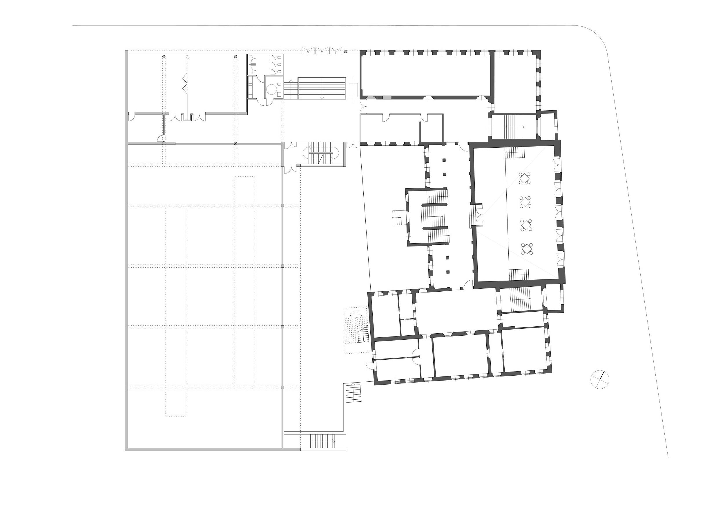
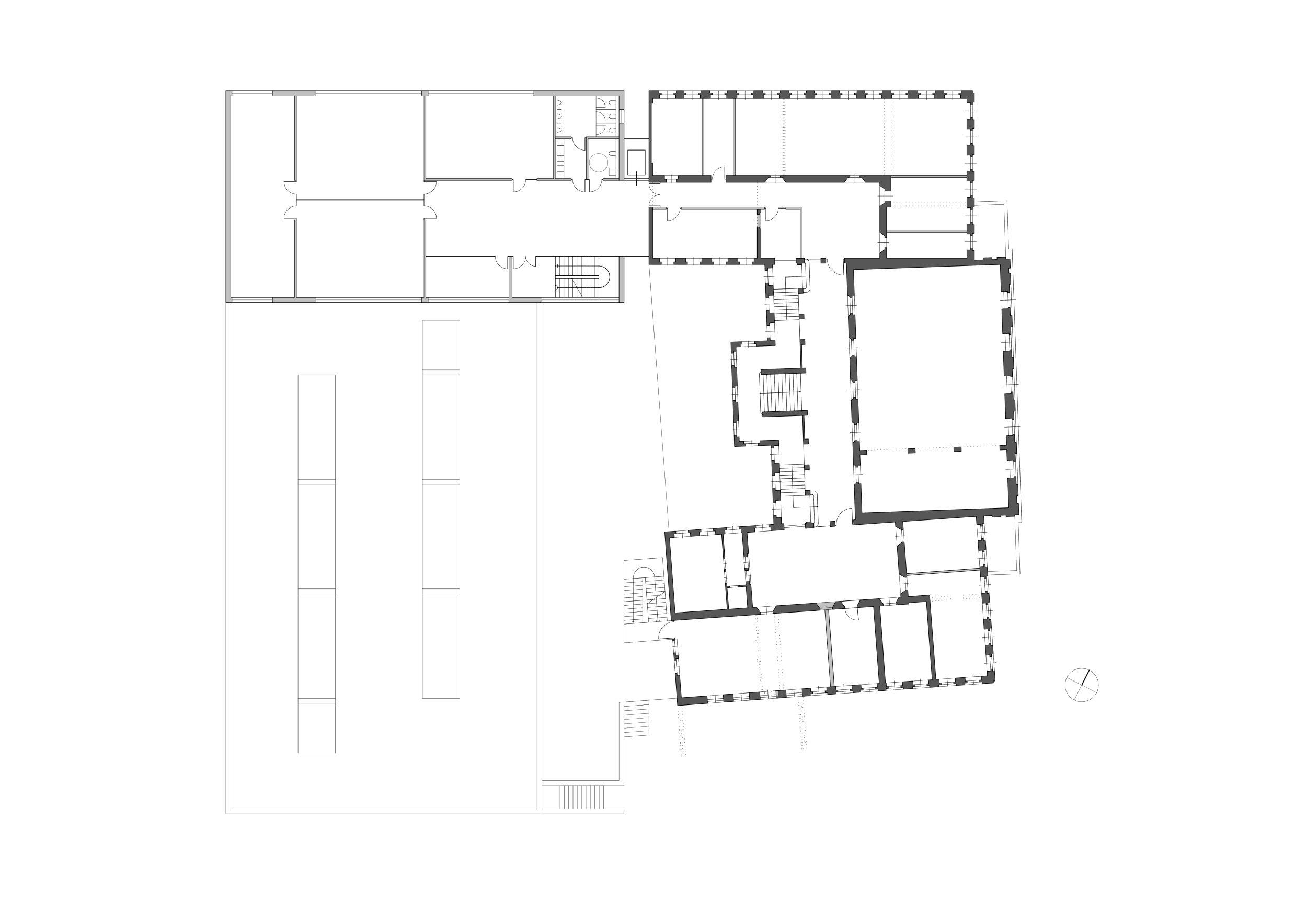
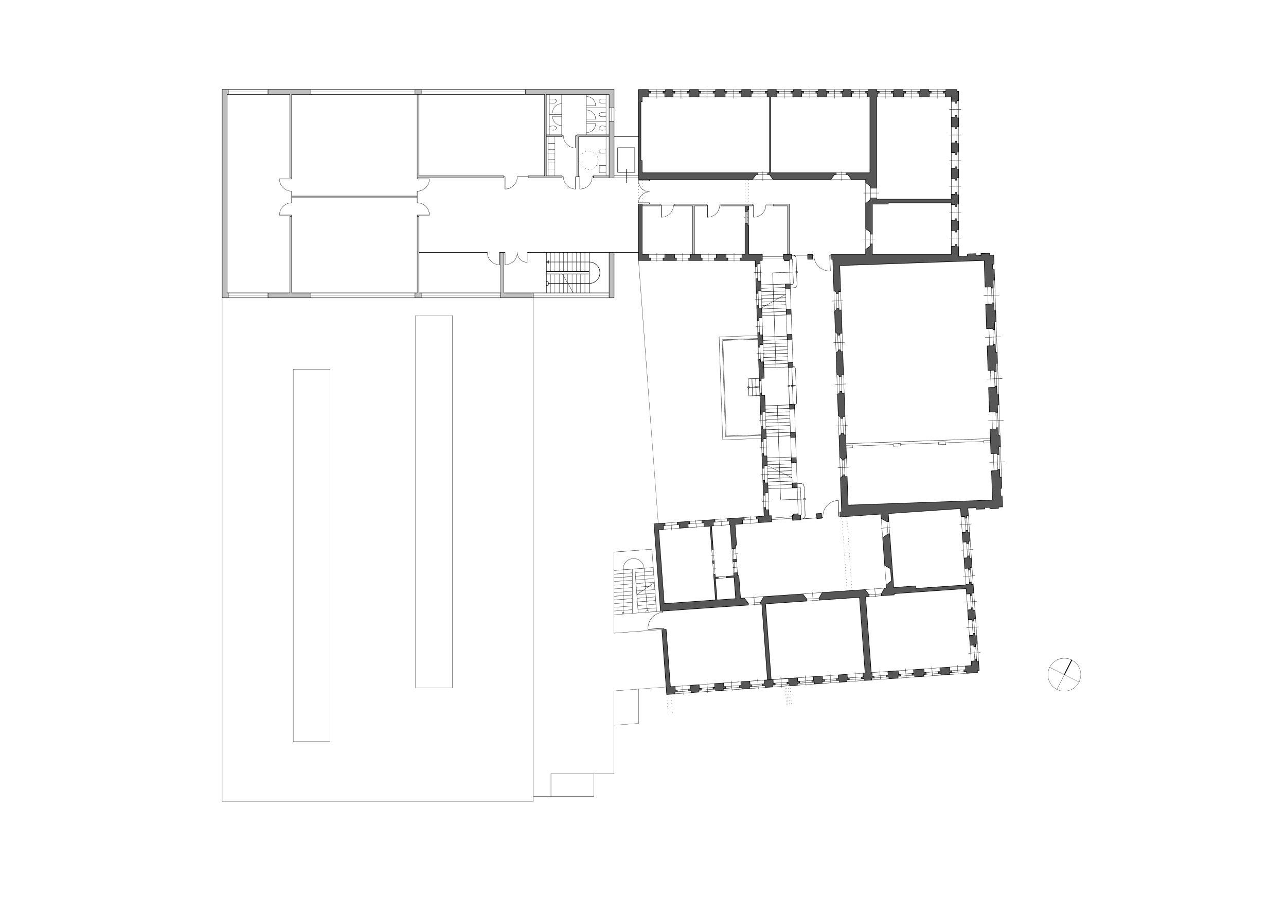
Der Neubau orientiert sich an den stilistischen Elementen des bestehenden Erlweinbaus. Die Gestaltung nimmt insbesondere die horizontale Gliederung des Sockels auf, wodurch eine klare Struktur und die Ablesbarkeit der Geschosse geschaffen werden.
In der Befensterung des Neubaus wird zudem die vertikale Lisenengliederung des Erlweinbaus aufgegriffen. Die Fenster sind so angeordnet, dass sie den vertikalen Rhythmus des historischen Vorbilds widerspiegeln, was zu einer harmonischen Verbindung zwischen Alt und Neu führt. Diese Anordnung unterstützt nicht nur die ästhetische Wirkung, sondern fördert auch die natürliche Belichtung der Innenräume.
Ein zentraler Haupteingang wird an der Weintraubenstraße platziert und bildet als Fuge die Verbindung zwischen dem Neubau und dem bestehenden Altbau. Dieser Zugang bildet nicht nur ein neues „Eingangstor“ zum Schulkomplex, sondern ermöglicht den Sportvereinen einen direkten Durchgang zur Sporthalle.
Die Fassadengestaltung und die durchdachte Erschließung des Schulkomplexes tragen somit zu einem ansprechenden Gesamterscheinungsbild bei, das den historischen Standort wieder als Gesamtensemble mit einer zeitgemäßen Architektursprache sichtbar macht.
Bildrechte: KILIAN ARCHITEKTEN









